Tulegatan 41
Kontakt
Fakta
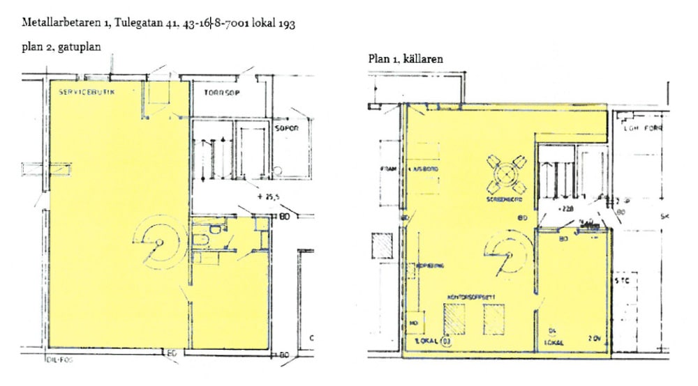
Om lokalen
Praktisk kontorslokal i två plan. Stora, ljusa, tillgängliga ytor och ett litet pentry gör att utrymmet fungerar för flera typer av verksamheter. En snygg och smidig spiraltrappa binder samman de två våningsplanen. Toalett finns.
Omgivningen
I Duvbo möts du av en lugn atmosfär med närhet till centrala Sundbyberg. Här finns många charmiga gamla trävillor, ett fåtal bostadshus och grönskande gator. Läget ger enkel tillgång till service, butiker och restauranger i närområdet. Här finns också den anrika Duvbo kyrka från 1904, som bidrar till områdets unika karaktär.
Kommunikationer
Duvbo har en egen tunnelbanestation Duvbo station belägen precis utanför området på Tulegatan, vilket ger smidiga resvägar in till Stockholm city. Dessutom finns goda bussförbindelser som knyter samman området med övriga delar av Sundbyberg och Stockholm.