Bild på objektet Bergdalen 8

Bergdalen 8

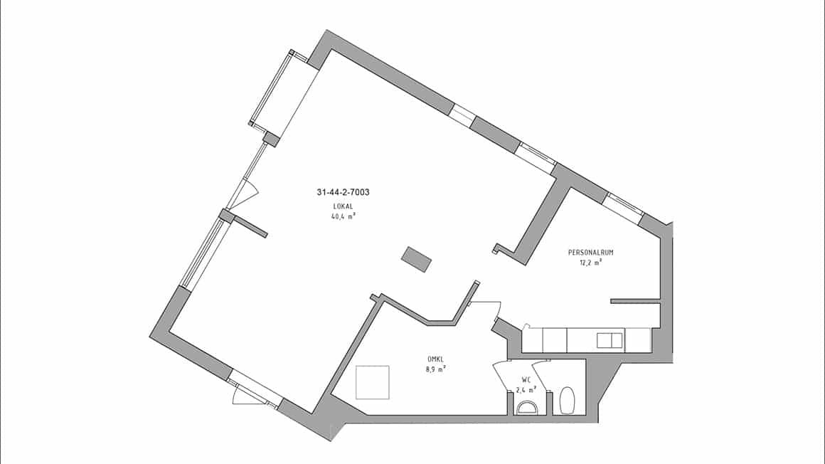
Om lokalen

En mysig lokal med stora möjligheter. Lokalen ligger i markplan på en gavel, vilket ger fint ljusinsläpp från tre håll. Den brukbara lokalytan uppgår till cirka 40 kvm, medan övrig yta utgörs av matplats med tillhörande kök samt omklädningsrum. Passar utmärkt för exempelvis café, boutique eller kontor.

Omgivningen

Storskogen är en charmig stadsdel i funkisstil från 1950-talet, präglad av grönskande omgivningar. Vid Storskogstorget finns livsmedelsbutik, kiosk, restaurang och tunnelbanestation. Runt hörnet ligger Filmstaden med biograf och restauranger, och centrala Sundbyberg med sitt breda serviceutbud nås på bara några minuter.

Kommunikationer

Storskogen har goda kommunikationer. Från tunnelbanestationen Näckrosen tar det endast 11 minuter till Stockholm city. Området knyts även samman med Filmstaden i Råsunda via Storskogstorget.